Property Detail
- Home
- Property Detail
Description
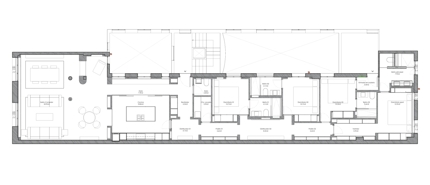
Descubre esta exclusiva propiedad entre las calles de Serrano y Hermanos Bécquer en el prestigioso Barrio de Castellana en el Distrito de Salamanca. Situada en una elegante finca clásica que combina el encanto arquitectónico con el potencial de un diseño moderno. Con 241 m² según catastro, techos de 3 metros de altura y una orientación sur que inunda el espacio de luz natural, esta vivienda ofrece una luminosidad y amplitud excepcionales. La abundancia de ventanas mejora la ventilación, mientras que la ausencia de muros de carga permite total libertad para personalizar la distribución según tus necesidades. En la propuesta de diseño, podrían configurarse tres amplias habitaciones dobles más una de servicio, todas con baño en suite, garantizando el máximo confort y privacidad. Además, la zona social destacaría por su gran amplitud, perfecta para crear espacios abiertos y acogedores para el disfrute diario y la vida en familia. Todo esto se complementa con la posibilidad de desarrollar un proyecto de arquitectura e interiorismo ultrapersonalizado, pensado para aprovechar al máximo el potencial de esta propiedad. Ubicada en una zona estratégica, rodeada de servicios, comercios y transporte público, esta vivienda representa una oportunidad única para crear el hogar de tus sueños en una de las calles más emblemáticas de la ciudad.
Characteristics
- 4 Rooms
- 4 Bathrooms
- 241 m2 Built Space
- 214 m2 Effective Space
- 12.282 € m2